敦賀市S様邸 浴室・洗面所・トイレ・子ども部屋改修工事
| お客様名称 敦賀市S様 | ||
|
お風呂リフォーム トイレリフォーム 洗面・脱衣所リフォーム 内装リフォーム |
275万円 | 工期 20日 |
AFTER [施工後]
|
BEFORE [施工前]
|
AFTER [施工後]
|
BEFORE [施工前]
|
AFTER [施工後]
|
BEFORE [施工前]
|
AFTER [施工後]
|
BEFORE [施工前]
|
AFTER [施工後]
|
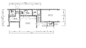
図面を見て頂くと、お家の中の変化がよく分かりますね。
ご家族が一緒に生活していく中で、不安や負担を無くすための工事をさせて頂きました。また、この機会にご家族の思いをカタチにしたお部屋づくりをさせて頂き、思いをカタチにする難しさを教えて頂きありがとうございました。
ご自宅の生活を最適、快適に行うために弊社は力いっぱいお手伝いさせていただきます。










































